Proyecto de Casa en Aigüesverds. Reus

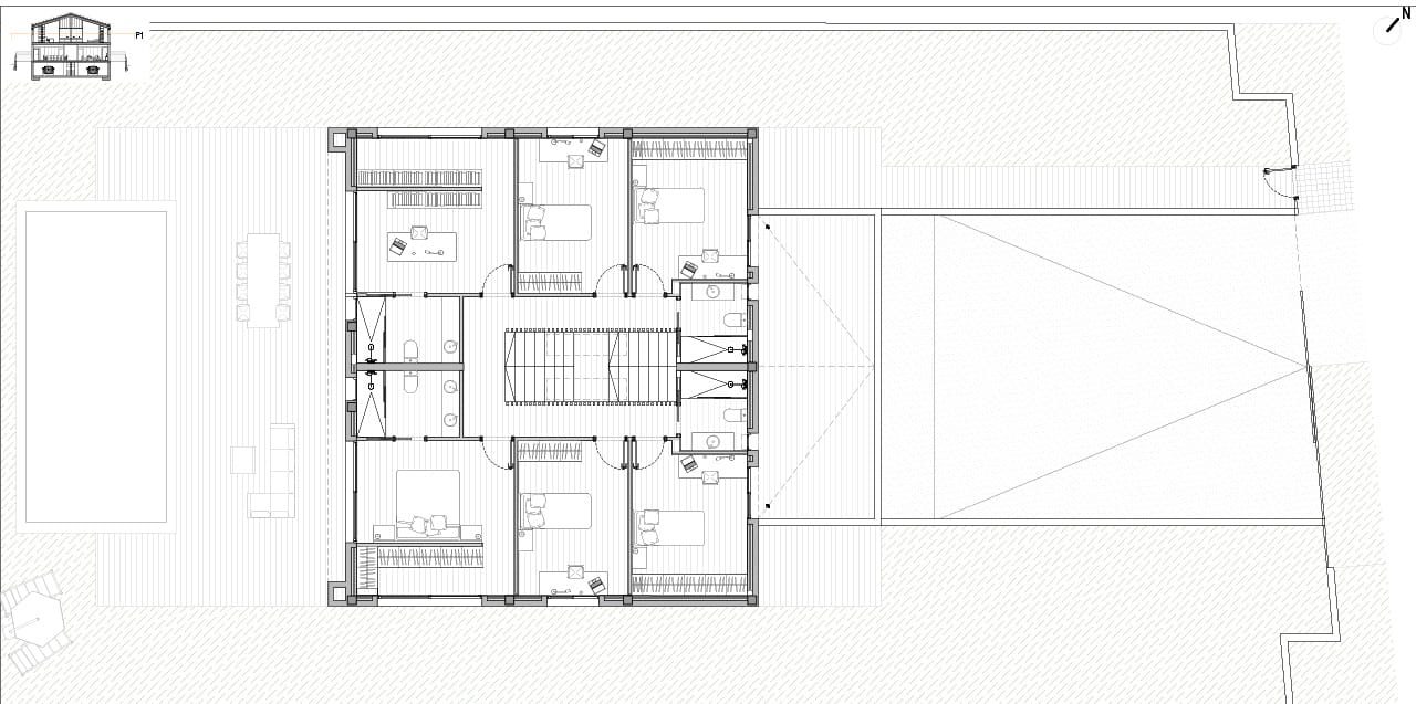
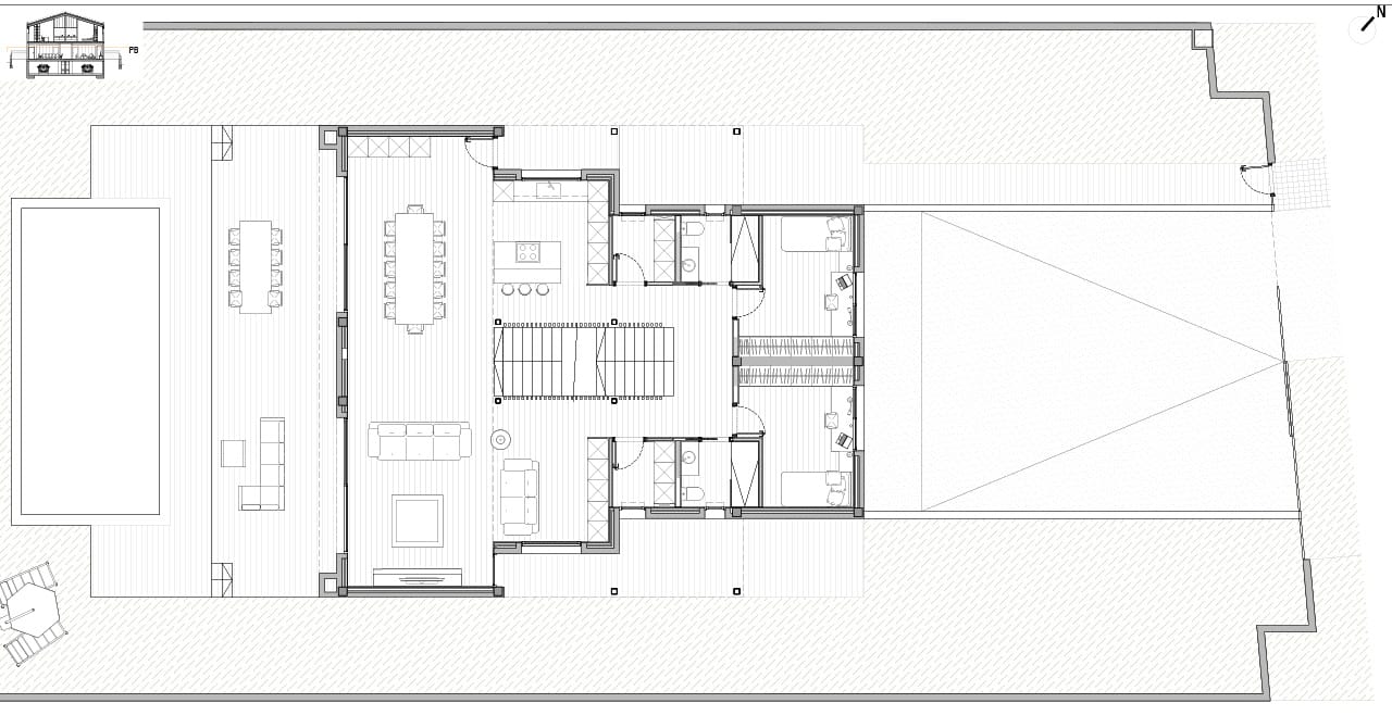
La casa es concebida como un volumen compacto que debe dar techo a una familia con muchos miembros.

Una de las casas más grandes proyectadas por nuestro estudio. La volumetría recupera la idea de la casa en alzado que dibujan los niños pero busca la aplicación de materiales modernos y minimalistas para simplificar sus líneas.

En fase de Licitación de la obra.

Ubicación: Urbanización de Aigüesverds – Reus
Superficie construida: 520m²

Promotor: Privado

Proyecto: Roger Blasco, Fran Mendoza (Roger Blasco Arq’s).